次回更新予定日:最終更新日より14日以内
概要
にかほ市畑字福田76(行政区:仁賀保)、昭和21年築の物件です。

数年前までカフェ営業をしていた古民家で、某スイカヘルメットの番組がお邪魔したこともあるそうです。
古民家で暮らしたい人、古民家カフェをしてみたい人、民泊にしたい人などなど、古民家を愛する人におすすめです♪
物件写真
外観・公図
建物1階
建物2階
その他
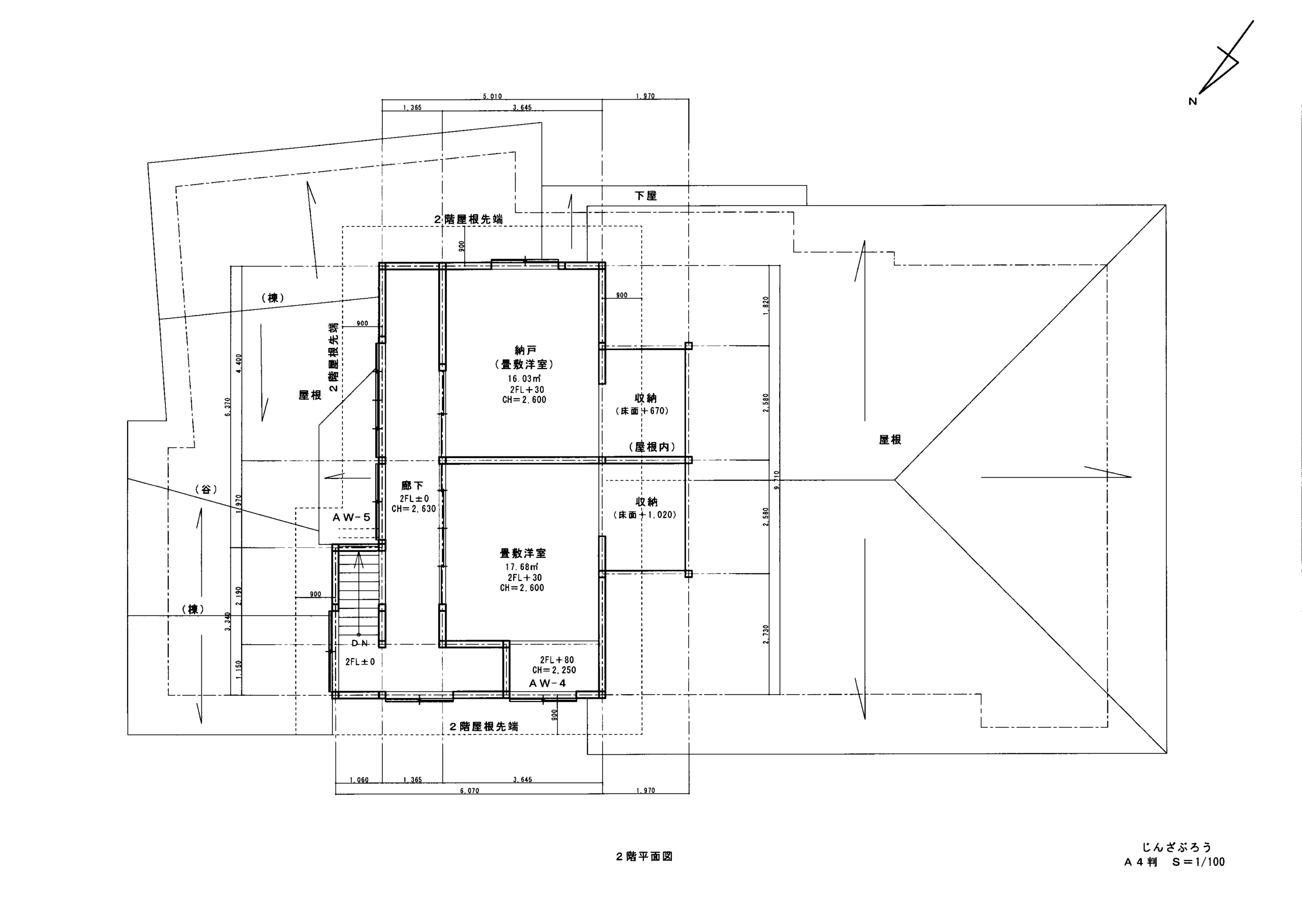
間取り図




※現況と図面に相違がある場合は現況を優先します
VRツアー
物件詳細情報
基本情報
| 所在地 | 〒018-0433 秋田県にかほ市畑福田76 |
|---|---|
| 物件種目 | 中古一戸建て(居宅) |
| 地目 | 宅地 |
| 態様 | 仲介 |
| 土地権利 | 所有権 |
| 交通 | 【電車】羽越本線 金浦駅より徒歩1時間25分(6km) |
| 物件管理番号 | H73 |
価格
| 価格 | 土地建物 合計:350万円 |
|---|---|
| 仲介手数料 | 総額:312,000円(税込)※法定手数料 ※800万円以下の物件:低廉な空き家等の売買取引における媒介報酬額の特例に基く(最大312,000円) |
住宅
| 間取り | 6DKS |
|---|---|
| 階/階建 | 2階建 |
| 建物面積 | 合計: 295.38㎡(89.35坪) 1階:233.03㎡(70.49坪) 2階:62.35㎡(18.86坪) |
| 築年 | 昭和21年築(1946年) (築79年/ 2025現在) |
| 建物構造 | 木造瓦葺2階建て ※一部亜鉛メッキ鋼板葺 |
| リフォーム履歴 | 都度 |
| その他備考 | 和(12.5帖、16帖) 洋(9.1帖、8.6帖、10.1帖、9.2帖) ダイニングキッチン(13.8帖) 納戸(11.4帖、4.5帖、8.5帖) ※間取り図からおよその面積を計算 |
土地面積と接道
| 地番 | にかほ市畑福田76 |
|---|---|
| 地目 | 宅地 |
| 土地の権利 | 所有権 |
| 土地面積 | 1103.67㎡(公簿) ※春に倉庫の底地を分筆するため、面積は確定ではありません(減ります) |
| 坪数 | 333.86坪 ※春に倉庫の底地を分筆するため、面積は確定ではありません(減ります) |
| 接道状況 | 2方向:公道 北 3級市道 31351 福田1号線 西 3級市道 31350 切掛田1号線 |
| 間口(接面) | 北63.3m 西24.14m |
| 地勢 | 平坦 |
各種法令
| 都市計画 | 都市計画区域内 非線引き地域 |
|---|---|
| 用途地域 | 無指定 |
| 建ぺい率 | 70% |
| 容積率 | 200% |
| 国土法届け出 | – |
| セットバック | – |
| その他建築規制等 | 建築基準法22条 |
設備・学区
| 駐車場 | 有 |
|---|---|
| 上下水道 | 上水道:有(公営) 下水道:有 |
| その他設備 | 電気・プロパン |
| 学区:小学校 | 院内小学校:徒歩63分(4.5km) |
| 学区:中学校 | 仁賀保中学校:徒歩74分(5.2km) |
その他
| 現況 | 空家 |
|---|---|
| 引渡し | 相談(春以降に分筆が入るため引き渡しはそれ以降になります) |
| その他特記事項 | 現況有姿 |
| 備考 | 洪水ハザードマップ:浸水深0.5m未満の区域 |
周辺地図
交通
【電車】羽越本線 金浦駅より徒歩1時間25分(6km)
【バス】にかほ市コミュニティバス 院内・小出線/釜ヶ台線 畑停留所:徒歩8分(600m)
行政機関
にかほ市公民館・畑支分館:徒歩5分(350m)
にかほ市役所 仁賀保庁舎:徒歩1時間39分(7km)
にかほ市役所 金浦庁舎 :徒歩1時間28分(6.2km)
仁賀保公民館(むらすぎ荘):徒歩1時間42分(7.3km)
にかほ市 金浦公民館 :徒歩1時間31分(6.4km)
学校
つぼみ保育園:徒歩1時間32分(6.5km)
院内小学校:徒歩63分(4.5km)
仁賀保中学校:徒歩74分(5.2km)
買い物
ローソン にかほ金浦インター店:徒歩1時間23分(5.9km)
マックスバリュ 金浦店:徒歩1時間27分(6.2km)
その他周辺施施設
小出郵便局:徒歩27分(1.9km)
ゆうちょ銀行ATM 小出郵便局::徒歩27分(1.9km)
小出診療所:徒歩25分(1.8km)
物件についての説明
にかほ市畑字福田76(行政区:仁賀保)、昭和21年築の物件です。
数年前までカフェ営業をしていた古民家で、某スイカヘルメットの番組がお邪魔したこともあるそうです。
古民家で暮らしたい人、古民家カフェをしてみたい人、民泊にしたい人などなど、古民家を愛する人におすすめです!
前面道路・土地形状について


画面左側が北、画面手前が西。2方向角地です。
前面道路は地番なしの「道」で、幅員はあまり太くはないですがにかほ市の市道です。
間口側の植え込みを撤去すると駐車しやすくなるかなとは思います。


土地上には母屋と作業小屋があります。
作業小屋は売主さん側で今後も使用するため、作業小屋の底地を分筆して売却する予定です。
現在土地面積は約333坪ありますが、250坪程度の広さになるのではないかなとは思います。※この項目は測量・分筆し次第更新します


土地の東側の方は家庭菜園が出来るほどのスペースがあります。
駐車場にするのも良いと思います。
住宅について


昭和21年築、建築基準法制定以前に建築された古民家です。
来客用の木戸と土間があり、カーテンを開け放てば庭の景色が一望できます。


囲炉裏のある大きな座敷12.5帖は、隣の続き間の16帖和室と合わせて28.5帖の広々した空間です。
過去にはこの座敷にテーブルを入れてカフェ営業をしていたこともあるそうです。






カフェ営業をするため、玄関側にあるトイレや手洗いは10年くらい前にリノベしているそうです。
下水に接続されています。


お風呂はユニットバスではありますが、ボイラやオイルタンクも撤去しているため、住宅や民泊として使用する場合などは洗濯脱衣室と合わせてリノベが必要になるとお考え下さい。


多分ではありますが、キッチン部分は昔土間だったところに床を上げているため、天井が低めです。
キッチン・ダイニング(食堂)が一体となった広さがあります。


3年ほど前までカフェ営業をしていた履歴があるのでキッチン利用は可能ですが、設備は古いところがあるので気になる方はリフォーム推奨です。


2階は居室2部屋です。
廊下の窓が大きく、東側の景色が一望できます。
インフラについて
- 上水道:地内引き込み 径不明
- 下水道:地内引込有
- 電気:小売事業者指定はありません
- ガス:プロパンガス地域
- 側溝:あり
上水管の引き込みはありますが引き込み径は不明です。
インフラについては使用前に業者にチェックしていただくことをお勧めします。
まとめ



めちゃかっこいい座敷のある古民家です。
古民家は、経年したかつての日本家屋にしか出せない渋みのある魅力と、それはそうと居住するにはリノベが必要だよね、といういいところと悪いところのある物件です。
古民家の特性・個性を愛していただける方にご検討いただけますと幸いです。
にかほ市空き家バンク登録物件です
この物件はにかほ市空き家バンク登録物件です。
にかほ市空き家バンク登録の物件は仲介手数料の助成等もあるので是非ご活用ください!
物件案内PDF
PDFでも閲覧できます♪
(別ウィンドウ/タブで開きます)
※公図や上下水道の詳細情報等が必要な場合は別途お問い合わせください。
お問い合わせについて



内見可能な物件です。
お問い合わせはサンタクマまでお願いいたします。
質問だけでも歓迎しております。
TEL:0184-33-2181







































































































